︎
ANDREW DADDS
︎
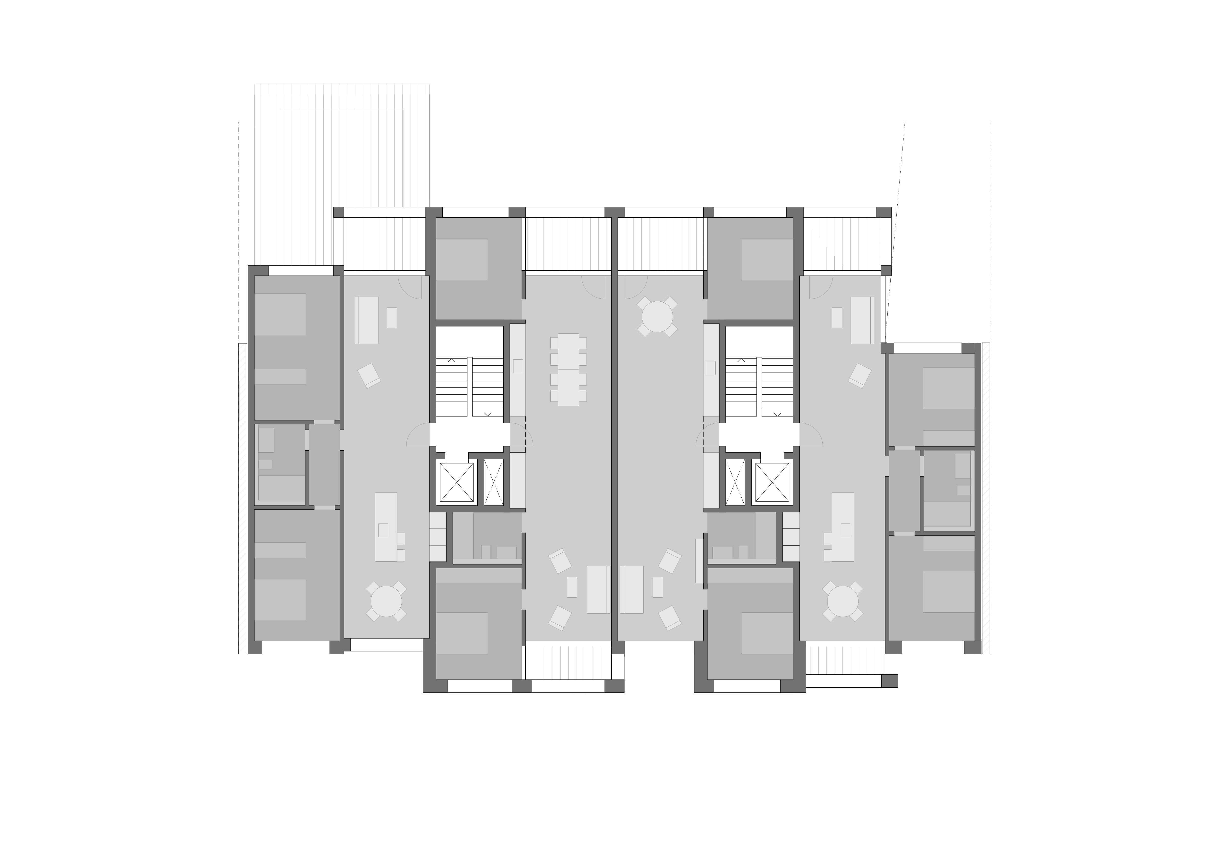
MFH Basel (ch) - commission, for Oppenheim Architecture